Skip Navigation

Case Study

House extension in Ashurst

Project Snapshot

Client Type

Homeowner (Bungalow)

Services Provided

• 2D Plans & Elevations

Timeline

Drawings delivered within 1 week, Planning approved first time, Building Control sign-off in 10 working days

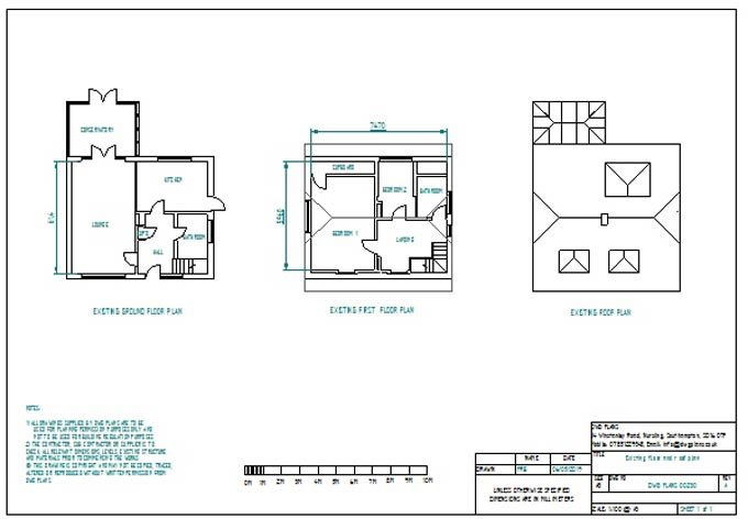
The Problem

A homeowner in Ashurst, wanted to create additional living space in their bungalow without compromising the look and feel of the existing property. Her goal was a wrap-around single storey extension that would blend seamlessly with the existing structure, enhancing both functionality and kerb appeal.

She needed expert guidance to ensure a smooth planning process and full compliance with local regulations.

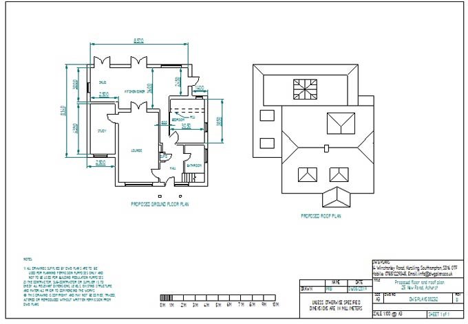
Our Solution

DWG Plans Ltd conducted an on-site survey measuring the entire property and advising on the most effective layout to maximise space while maintaining architectural harmony. The design team produced comprehensive planning drawings, including existing and proposed floor plans, roof plans, and elevations.

Following a collaborative review with the client and minor revisions, DWG Plans Ltd submitted the application to the local council which was approved on the first submission. We then prepared full building regulation drawings and arranged structural calculations through a trusted partners. These were approved allowing construction to begin promptly.

The Result

The client now enjoys a beautifully integrated wrap-around extension that enhances both the space and value of the property. The extension blends perfectly with the original bungalow, creating a stunning transformation with minimal disruption.

As DWG Plans Ltd continued to grow rapidly, demand for our services expanded beyond Hampshire, leading to the establishment of DWG Plans Sussex Ltd to better serve clients in the Sussex region.

This regional expansion ensures local homeowners benefit from dedicated design expertise, swift turnaround times, and in-depth knowledge of local planning authorities.

Ready to unlock your loft space?

We’ll help you transform unused space into a master suite, office, or extra bedroom with profesional drawings, plans and visuals

Cookies

This website uses cookies to provide best user experience. Click here to view our privacy policy.

I Accept Reject
WhatsApp