Skip Navigation

Case Study

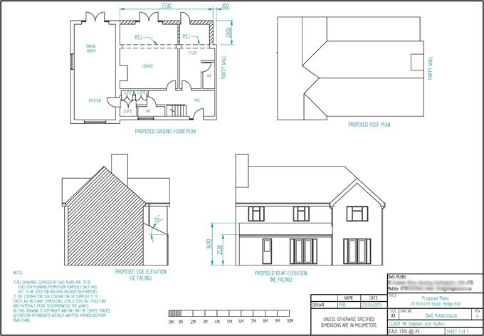
House extension in Southampton

Project Snapshot

Client Type

Homeowner

Services Provided

• 2D Plans & Elevations

Timeline

Drawings delivered within 1 week, Planning approved first time, Building Control sign-off in 10 working days

The Problem

The client needed an additional bedroom to accommodate their growing family but did not want the cost or disruption of moving home. They required a well-designed single-storey rear extension that would maximise space, meet planning requirements, and be delivered efficiently to allow building work to begin as soon as possible.

Our Solution

DWG Plans Ltd carried out a full survey and produced the planning permission drawings to extend the property with a rear single-storey addition. The proposal was carefully designed to integrate seamlessly with the existing home while meeting all local authority guidelines. Planning was approved on the first submission, allowing the client to proceed quickly.

In addition to the design and planning service, DWG Plans Ltd supported the client further by recommending trusted local builders and providing contacts for structural engineers to prepare RSJ calculations.

The Result

The client received planning approval within 8 weeks, enabling an immediate start to the build.

With DWG Plans Ltd facilitating key introductions to reputable contractors and engineers, the process was streamlined from design through to construction.

The homeowner was now able to move forward confidently with their home extension project, knowing they have the right professional support in place.

Ready to unlock your loft space?

We’ll help you transform unused space into a master suite, office, or extra bedroom with profesional drawings, plans and visuals.

Cookies

This website uses cookies to provide best user experience. Click here to view our privacy policy.

I Accept Reject
WhatsApp