Case Study
The Problem
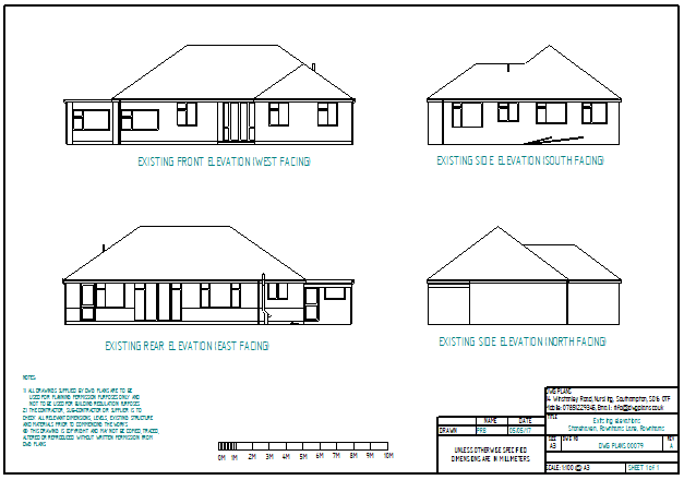
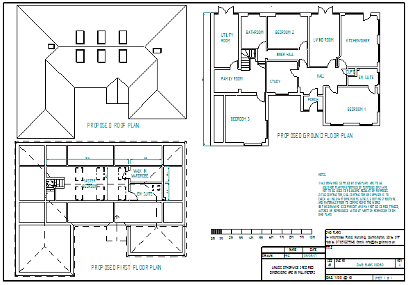
The client owned a bungalow with a large, underused loft and an unbalanced front elevation. They wanted to maximise the property’s potential by creating additional living space, improving the symmetry of the frontage, and adding a master suite with modern amenities. Their goal was to increase usable space without altering the footprint significantly, and to future-proof the home for long-term living.
Our Solution
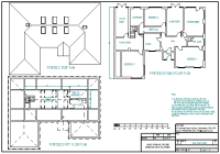
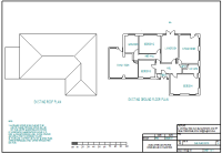
DWG Plans Hampshire conducted a full measured survey of the property and proposed a front extension projecting 5 metres with a width of 5.5 metres to create an additional bedroom with built-in storage.
CAD drawings of the existing and proposed layouts were produced and submitted to the local council. Due to nearby protected Sycamore trees, additional technical information was provided.
The Result
Planning permission was granted followed by full building regulation drawings and structural calculations, The unused loft was transformed into a spacious master bedroom complete with an en-suite and walk-in wardrobe.
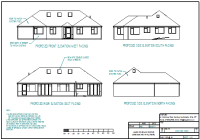
The project transformed the bungalow into a significantly larger and more functional home with improved curb appeal through a symmetrical frontage.
The clients were delighted with the increased space and enhanced layout, and were so impressed that they recommended DWG Plans to their family, resulting in further project commissions.
Related Case Studies
House extension in Ashurst
First time approval
A homeowner in Ashurst, wanted to create additional living space in their bungalow without compromising the look and feel of the existing property.
House extension in Southampton
Approved in 8 weeks
The client needed an additional bedroom to accommodate their growing family but did not want the cost or disruption of moving home. They required a…
Two Storey Renovation in Horsham
First time approval
The client needed additional space to accomodate their growing family but did not want the cost or disruption of moving home as they loved the area…
Ready to unlock your loft space?
We’ll help you transform unused space into a master suite, office, or extra bedroom with profesional drawings, plans and visuals
© 2026 DWG Plans Sussex Ltd. | All Rights Reserved | Sitemap | Site Design
Cookies
This website uses cookies to provide best user experience. Click here to view our privacy policy.